FAMILIENHAUS

Familienhaus in Neukirchen

€ 730.000,- Zzgl. Kaufnebenkosten: + 3% Maklerprovision + 20% MwSt

Neukirchen am Grossvenediger

Details zur Immobilie
Details zur Immobilie
Beschreibung

Ein vielseitiges und sonniges Familienhaus im Herzen von Neukirchen

In einer sonnigen und ruhigen Wohnsiedlung von Neukirchen, mit freiem Blick auf die Hohen Tauern, liegt dieses charmante und hervorragend gepflegte Einfamilienhaus. Ein warmes und solides Zuhause für alle, die Raum, Ruhe und alpinen Alltag suchen – oder für Interessenten aus den Niederlanden und Belgien, die einen dauerhaften Wohnsitz in Österreich mit der Möglichkeit einer teilweisen Vermietung sinnvoll verbinden möchten.

Mit ca. 165 m² Wohnfläche, verteilt auf drei Ebenen, bietet das Haus ein überraschend flexibles Wohnkonzept. Die separate 2-Zimmer-Einheit im Erdgeschoss schafft echte Nutzungsmöglichkeiten: ideal für Gäste, Mehrgenerationenwohnen oder – bei Hauptwohnsitz – als kleine Vermietungseinheit. Die oberen Wohnebenen sind lichtdurchflutet und vermitteln eine wohltuende alpine Atmosphäre, ergänzt durch großzügige Balkone und einen schönen Ausblick auf die umliegenden Bergketten.

Das Haus wurde über die Jahre hinweg sorgfältig renoviert und erweitert, wodurch ein solides und komfortables Gesamtbild entstanden ist. Wer Wohnen und Vermieten kombinieren möchte, kann mit gezielten Modernisierungen zusätzlichen Wert schaffen und das volle Potenzial ausschöpfen – eine ideale Grundlage für ein nachhaltiges Lebens- und Wohnkonzept in den Alpen.

Ein vollständiges, sonniges und äußerst angenehmes Zuhause in einer begehrten Lage: ruhig, familienfreundlich und fußläufig sowohl zum Ortszentrum als auch zur Wildkogel-Arena.

Mehr anzeigen Weniger anzeigen

Merkmale

  • Wohnfläche: 165 m²
  • Grundstücksfläche: 348 m²
  • Keller: 90
  • Zimmer: 3
  • Badezimmer: 3
  • Balkone: 3
  • Terrassen: 2
  • Garage: Ja
  • Carport: 2 Stellplätze
  • Garten: Ja (inkl. urige Gartenhütte aus Altholz)
  • Heizung: Fernwärme
  • Widmung / Nutzungsart: Hauptwohnsitz
Mehr anzeigen Weniger anzeigen
Das Familienhaus

Wohnen mit Möglichkeiten

Das Haus in der Neudaugasse ist ideal für Familien, Paare oder Auswanderer, die ein komfortables Zuhause in den Alpen suchen und Wert auf Flexibilität legen. Der Hauptwohnbereich bietet viel Raum für den täglichen Alltag, während das eigenständige Untergeschoss hervorragende Optionen für Gäste, Familie oder – bei Hauptwohnsitz – für eine kleine Vermietung schafft.

Ein Zuhause, in dem Wohnen, Arbeiten und Vermieten auf natürliche Weise zusammenfinden.

RAUM. RUHE. FLEXIBILITÄT

Flexibles Wohnkonzept

Das Haus kombiniert eine Hauptwohnebene mit einer eigenständigen 2-Zimmer-Wohnung im Erdgeschoss – jeweils mit eigenen Räumen und Privatsphäre. Ideal für Gäste, Familie, Mehrgenerationenwohnen oder eine kompakte Vermietungseinheit.

Komfortables Familienwohnen

Drei Wohnebenen, mehrere Schlafzimmer, sonnige Balkone, viel Licht und ein gepflegter Garten machen dieses Haus zu einem kompletten und angenehmen Zuhause für Familien, die das ganze Jahr über in den Alpen leben möchten.

Ruhige, sonnige Lage

Gelegen in einem kleinschaligen Wohnviertel mit überwiegend permanenten Bewohnern, in kurzer Distanz zum Ortszentrum, zu allen wichtigen Einrichtungen und zur Wildkogel-Arena. Mit freiem Blick auf die Hohen Tauern und viel Sonne

DAS HAUS IM ÜBERBLICK

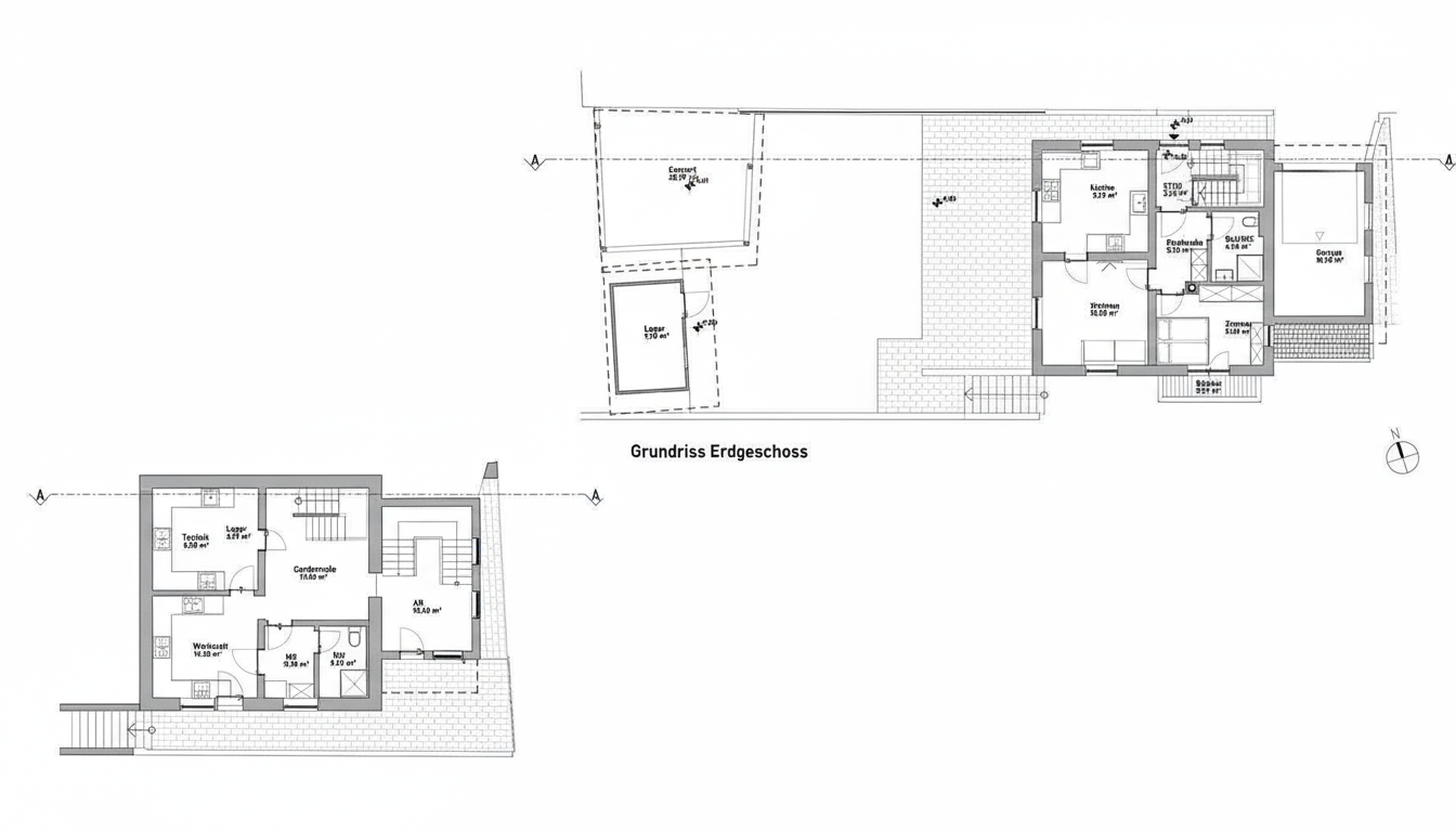
Erdgeschoss – Die Gästewohnung
Eine vollständig eigenständige 2-Zimmer-Einheit mit Küche, Wohnzimmer, Schlafzimmer, Badezimmer, separatem WC und Balkon. Ideal für Gäste, Eltern, erwachsene Kinder oder als kompakte Vermietungseinheit für Eigentümer mit Hauptwohnsitz.
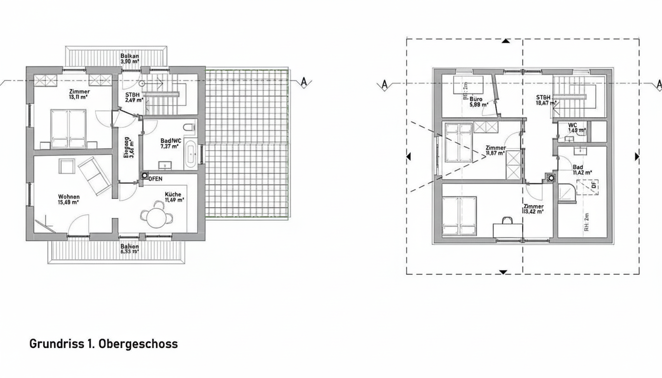
Obergeschoss – Der Wohnbereich
Das Herz des Hauses: eine helle Wohn- und Lebensetage mit offener Küche, großzügigen Balkonen und Blick auf die umliegenden Berge. Hier verbinden sich tägliche Ruhe, Sonne und Wohnkomfort.
Dachgeschoss – Das Dachquartier
Zwei Schlafzimmer, ein offener Galeriebereich, ein Badezimmer sowie eine kleine Sauna bilden eine behagliche, ruhige Privatetage unter dem Holzdach. Ein geschützter Rückzugsort für Entspannung.
DAS HAUS IM ÜBERBLICK

Erdgeschoss – Die Gästewohnung

Eine vollständig eigenständige 2-Zimmer-Einheit mit Küche, Wohnzimmer, Schlafzimmer, Badezimmer, separatem WC und Balkon. Ideal für Gäste, Eltern, erwachsene Kinder oder als kompakte Vermietungseinheit für Eigentümer mit Hauptwohnsitz.
DAS HAUS IM ÜBERBLICK

Obergeschoss – Der Wohnbereich

Das Herz des Hauses: eine helle Wohn- und Lebensetage mit offener Küche, großzügigen Balkonen und Blick auf die umliegenden Berge. Hier verbinden sich tägliche Ruhe, Sonne und Wohnkomfort.
DAS HAUS IM ÜBERBLICK

Dachgeschoss – Das Dachquartier

Zwei Schlafzimmer, ein offener Galeriebereich, ein Badezimmer sowie eine kleine Sauna bilden eine behagliche, ruhige Privatetage unter dem Holzdach. Ein geschützter Rückzugsort für Entspannung.
UMGEBUNG

Ihr Zuhause zwischen Bergen und Natur

In der Neudaugasse wohnen Sie in einer ruhigen, sonnigen Straße, nur wenige Minuten vom Ortszentrum und der Wildkogel-Arena entfernt. Im Winter erreichen Sie die Gondelbahn von Neukirchen in kürzester Zeit – ideal zum Skifahren, Rodeln und für erholsame Familientage im Schnee. Im Sommer verwandelt sich die Umgebung in ein weitläufiges Wander- und Bikeparadies mit zahlreichen Routen, die durch den Nationalpark Hohe Tauern führen. Die imposanten Krimmler Wasserfälle, klare Bergseen und panoramareiche Höhenwege liegen alle in unmittelbarer Nähe.

  • 75 km perfekt präparierte Pisten in der Wildkogel-Arena – schneesicher von Dezember bis nach Ostern.
  • Die längste beleuchtete Rodelbahn der Welt (14 km) – ideal für abendliche Winterabenteuer.
  • 20 moderne Liftanlagen bis auf 2.100 m Höhe mit Panoramablick auf die Hohen Tauern.
  • Ein umfangreiches Sommerparadies für Wanderer und Radfahrer – zahlreiche Routen, E-Bike-Trails und Vorteile mit der Nationalpark Sommercard.
  • Durchschnittlich 242 cm Schneehöhe pro Jahr und ca. 20 Schneetage – beeindruckende Werte für ein authentisches Alpenwintererlebnis.
STANDORT

Raum und Ruhe in Neukirchen

Die Immobilie liegt in einer kleinen, ruhigen Wohnstraße mit überwiegend permanenten Bewohnern – eine sichere und angenehme Umgebung mit viel Privatsphäre. Schulen, Geschäfte, öffentliche Verkehrsmittel und das charmante Ortszentrum von Neukirchen sind in wenigen Minuten erreichbar.

Die Wildkogel-Arena befindet sich in Gehweite; mit dem Skibus erreichen Sie die Bergbahn in kürzester Zeit. Eine ideale Lage für alle, die im Winter wie im Sommer die Berge genießen möch

Kontakt

Interessiert an diesem einzigartigen Objekt oder neugierig auf unser zukünftiges Angebot?

Zögern Sie nicht, uns zu kontaktieren. Wir stehen bereit, Ihre Fragen zu beantworten und Ihre Wünsche zu besprechen. Lassen Sie uns gemeinsam Ihr Traumzuhause finden!

"*" indicates required fields

This field is for validation purposes and should be left unchanged.
Entdecken Sie LeadPro

Hinterlassen Sie bitte Ihre Daten, um einen Termin zu vereinbaren.

"*" indicates required fields

This field is for validation purposes and should be left unchanged.
Kontakt

Wir helfen Ihnen gerne.

"*" indicates required fields

This field is for validation purposes and should be left unchanged.

"*" indicates required fields

This field is for validation purposes and should be left unchanged.

Welche Cookies gibt es?

Wir unterscheiden zwischen verschiedenen Arten von Cookies.

Unbedingt erforderliche Cookies:

Diese sind für die Funktionalität der Website unerlässlich und werden in der Regel nur als Reaktion auf bestimmte Aktionen gesetzt, die der Benutzer durchführt, wie das Anfordern von Diensten, das Anmelden oder das Ausfüllen von Formularen.

Leistungscookies:

Diese Cookies sammeln Informationen darüber, wie Besucher eine Website nutzen, zum Beispiel welche Seiten sie am häufigsten besuchen. Sie helfen dabei, die Funktionalität der Website zu verbessern.

Funktionalitätscookies:

Diese Cookies werden verwendet, um Entscheidungen und Präferenzen zu speichern, wie beispielsweise Sprachpräferenzen oder die Region, in der sich der Benutzer befindet. Sie tragen zu einer besseren Benutzererfahrung bei.

Targeting- oder Werbecookies:

Diese Cookies werden oft mit Zustimmung des Website-Eigentümers von Werbenetzwerken platziert. Sie verfolgen das Surfverhalten eines Benutzers auf verschiedenen Websites und erstellen Profile, um gezielte Anzeigen anzuzeigen.

Analysecookies:

Diese Cookies werden verwendet, um die Nutzung der Website zu analysieren und Berichte über die Leistung zu erstellen. Sie können Einblicke darüber geben, wie Benutzer mit der Website interagieren.