ZWEITWOHNSITZ

81up Residenz 1 Penthouse 2

€ 1.980.000,- zzgl. MwSt., zzgl. Kaufnebenkosten.

Hollersbach im Pinzgau

Details zur Immobilie
Details zur Immobilie
Beschreibung

Willkommen im R 1 Penthouse 2 von 81UP

Innerhalb von 81UP entstehen keine Wiederholungen.
Und nur selten wird eine der Wohnungen erneut verfügbar.

Dieses Penthouse nimmt dabei eine besondere Stellung ein. Als eigenständige Wohnebene unter dem Dach verbindet es die architektonische Klarheit von 81UP mit einem ausgeprägten Gefühl von Rückzug, Raum und Privatsphäre. Die vorhandene Zweitwohnsitzwidmung unterstreicht die Freiheit der Nutzung – als privater Rückzugsort ebenso wie im Rahmen einer touristischen Vermietung. Sichtbare Holzkonstruktionen, großzügige Glasflächen und eine durchdachte Raumführung schaffen eine Wohnatmosphäre, die gleichermaßen offen wie geborgen wirkt.

Der weitläufige Wohn- und Essbereich bildet das Herz der Wohnung. Von hier aus öffnet sich der Blick in die umliegende Berglandschaft und auf den großzügigen Balkon, der den Innenraum selbstverständlich nach außen erweitert. Licht, Aussicht und Materialität stehen dabei nicht im Vordergrund – sie begleiten den Raum leise und selbstverständlich.

Die private Zone ist klar gegliedert und konsequent auf Komfort ausgelegt. Mehrere Schlafzimmer, hochwertige Bäder sowie eine integrierte private Sauna machen das Penthouse zu einem Ort des Ankommens und Abschaltens – unabhängig von Jahreszeit oder Nutzung.

Dieses Penthouse ist kein Versprechen, sondern eine Konsequenz aus Architektur, Lage und Qualität.
Eine seltene Gelegenheit, 81UP in seiner vollständigsten Form zu erleben.

Preisliche Hinweise

Preis für Anleger (bei touristischer Vermietung): € 1.980.000 zzgl. 20 % USt.
Preis für Privatnutzung (Zweitwohnsitz): € 2.376.000 inkl. 20 % USt.
.

 

Mehr anzeigen Weniger anzeigen

Merkmale

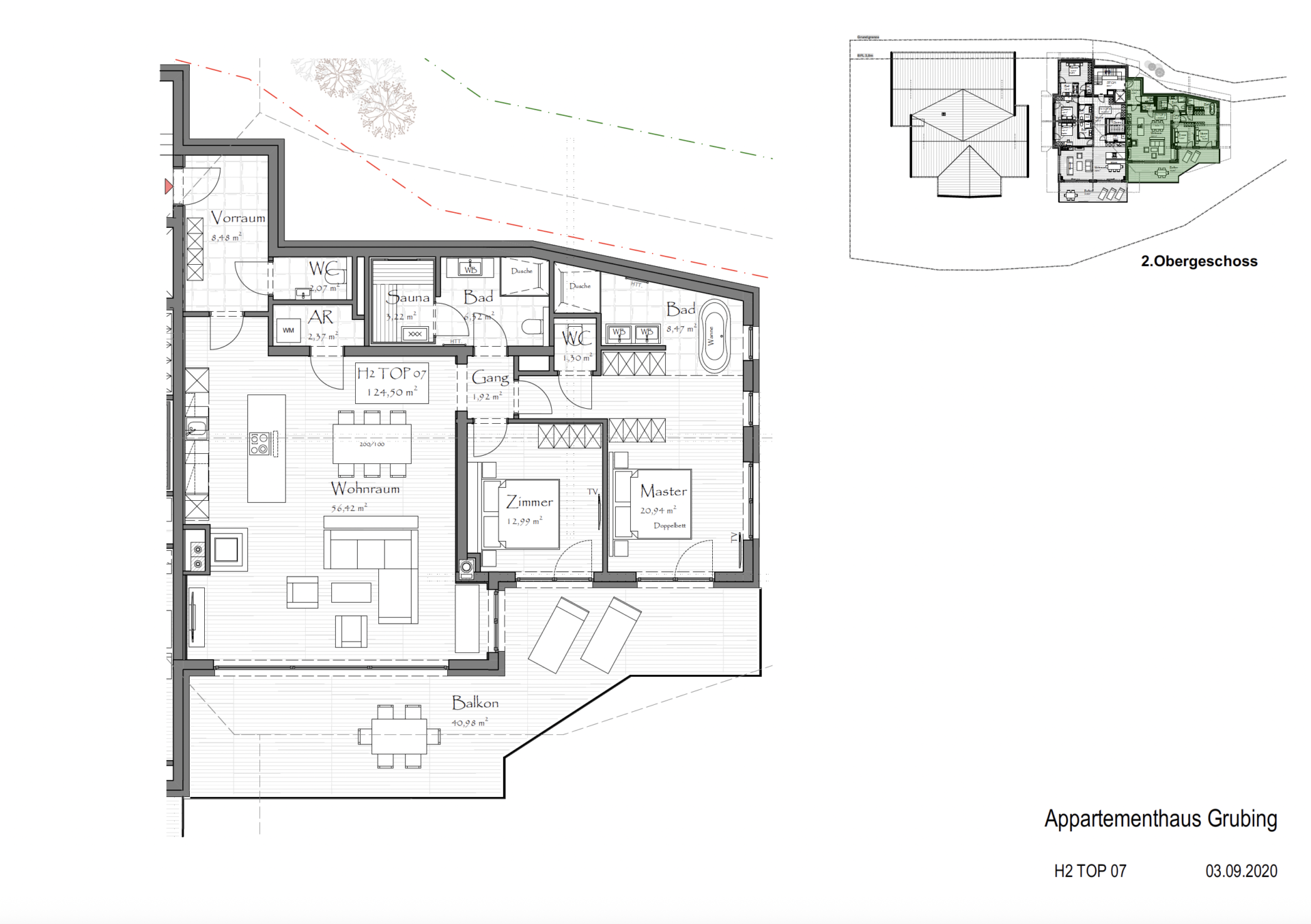
  • Wohnfläche: 126
  • Schlafzimmer: 2
  • Badezimmer: 2
  • Sauna & Jacuzzi: Ja
  • Kamin: Ja
  • Terrasse: 42
  • Terrassenausrichtung: Süden
  • Parkplätze: 2
  • Abstellraum: Ja
  • Skikeller: Ja, mit privaten Spind
  • Energie: HWBRef,SK: 23,5 kWh/m²a; FGEE: 0,65
  • Widmung:: Zweitwohnsitz & touristische Vermietung möglich
Mehr anzeigen Weniger anzeigen
81up

Der Ausblick. Die Ruhe. Das Penthouse.

Dieses Penthouse bildet den architektonischen Abschluss von 81UP.
Als eigenständige Wohnebene unter dem Dach vereint es Weite, Licht und maximale Privatsphäre.
Ein Ort, der nicht erklärt werden muss, sondern erlebt wird.

Offizieller Zweitwohnsitz

Eine seltene Widmung in Österreich: Dieses Penthouse verfügt über einen offiziellen Zweitwohnsitz-Status und ermöglicht eine freie Nutzung – als privater Rückzugsort ebenso wie im Rahmen der touristischen Vermietung.

Schlüsselfertig übernommen

Das Penthouse wird vollständig und hochwertig eingerichtet verkauft. Ausstattung, Materialien und Raumkonzept sind aufeinander abgestimmt und unterstreichen den eigenständigen Charakter dieser Wohnebene.

Vier-Jahreszeiten-Destination

Als höchstgelegene Wohnebene von 81UP bietet das Penthouse zu jeder Jahreszeit einen besonderen Bezug zur Umgebung – vom Skigebiet KitzSki im Winter bis zu Wanderungen und Ruhe im Nationalpark Hohe Tauern im Sommer.
UMGEBUNG

Erleben Sie das Beste aller Jahreszeiten

Leben Sie im Rhythmus der Alpen: Im Winter genießen Sie endlose Skipisten und Schneesicherheit, im Sommer erwarten Sie panoramareiche Wanderwege und pure Bergstille. Hier finden Sie keinen Massentourismus, sondern Freiheit, Natur und Authentizität – von entspannten Talrouten bis zu herausfordernden Dreitausendern. Eine Umgebung, die in jeder Jahreszeit ihre eigene Magie entfaltet – und aus erhöhter Perspektive noch intensiver erlebbar wird.

  • Panoramabahn Kitzbühel nur 5 Fahrminuten entfernt – direkter Zugang zu einem der besten Skigebiete Europas
  • Über 250 km Wander-, Rad- und Bergwege – von leichten Routen bis zu anspruchsvollen Dreitausendern
  • Ruhe, Weite und kein Massentourismus – Wohnen am Rand des Nationalparks Hohe Tauern
  • Gleichwertig stark im Sommer wie im Winter – von Skivergnügen bis zu Wandern, Radfahren und Übernachten in authentischen Berghütten
STANDORT

Exklusive Lage am Rande des Nationalparks Hohe Tauern

81UP liegt 81 Meter über dem Ortszentrum von Hollersbach, auf einem sonnigen Hochplateau mit freiem Blick, Ruhe und Diskretion – ohne auf Komfort oder Erreichbarkeit zu verzichten. Gerade aus den oberen Wohnebenen entfaltet sich hier ein besonderes Gefühl von Weite und Rückzug. Direkt am Rand des Nationalparks Hohe Tauern wohnen Sie mitten in der Natur, während die authentische Region Oberpinzgau mit ursprünglicher Landschaft, gemütlichen Restaurants und allen Annehmlichkeiten des täglichen Lebens aufwartet.

Kontakt

Interessiert an diesem einzigartigen Objekt oder neugierig auf unser zukünftiges Angebot?

Zögern Sie nicht, uns zu kontaktieren. Wir stehen bereit, Ihre Fragen zu beantworten und Ihre Wünsche zu besprechen. Lassen Sie uns gemeinsam Ihr Traumzuhause finden!

"*" indicates required fields

This field is for validation purposes and should be left unchanged.
Entdecken Sie LeadPro

Hinterlassen Sie bitte Ihre Daten, um einen Termin zu vereinbaren.

"*" indicates required fields

This field is for validation purposes and should be left unchanged.
Kontakt

Wir helfen Ihnen gerne.

"*" indicates required fields

This field is for validation purposes and should be left unchanged.

"*" indicates required fields

This field is for validation purposes and should be left unchanged.

Welche Cookies gibt es?

Wir unterscheiden zwischen verschiedenen Arten von Cookies.

Unbedingt erforderliche Cookies:

Diese sind für die Funktionalität der Website unerlässlich und werden in der Regel nur als Reaktion auf bestimmte Aktionen gesetzt, die der Benutzer durchführt, wie das Anfordern von Diensten, das Anmelden oder das Ausfüllen von Formularen.

Leistungscookies:

Diese Cookies sammeln Informationen darüber, wie Besucher eine Website nutzen, zum Beispiel welche Seiten sie am häufigsten besuchen. Sie helfen dabei, die Funktionalität der Website zu verbessern.

Funktionalitätscookies:

Diese Cookies werden verwendet, um Entscheidungen und Präferenzen zu speichern, wie beispielsweise Sprachpräferenzen oder die Region, in der sich der Benutzer befindet. Sie tragen zu einer besseren Benutzererfahrung bei.

Targeting- oder Werbecookies:

Diese Cookies werden oft mit Zustimmung des Website-Eigentümers von Werbenetzwerken platziert. Sie verfolgen das Surfverhalten eines Benutzers auf verschiedenen Websites und erstellen Profile, um gezielte Anzeigen anzuzeigen.

Analysecookies:

Diese Cookies werden verwendet, um die Nutzung der Website zu analysieren und Berichte über die Leistung zu erstellen. Sie können Einblicke darüber geben, wie Benutzer mit der Website interagieren.